Modernisierte Wohnung in Dienstedt zu vermieten
Informationen zur Immobilie:
Zimmeranzahl
4
Ort
99326 Stadtilm
Objektart
Wohnung
Größe
ca. 81,00 m²
790 €
Beschreibung:
Mehr zum Angebot Modernisierte Wohnung in Dienstedt zu vermieten:
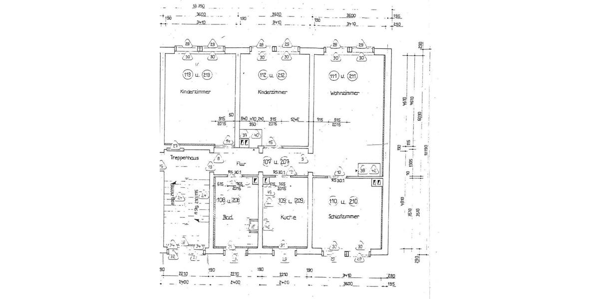
Angeboten wird in Dienstedt eine 2026 modernisierte Wohnung in einem etwa 1992 fertiggestelltem Mehrfamilienhaus mit 6 WE. Die Wohnung besteht aus 4 ZKB mit insgesamt ca. 81 m² Wohnfläche.
Zur erstmaligen... mehr erfahren
Angeboten wird in Dienstedt eine 2026 modernisierte Wohnung in einem etwa 1992 fertiggestelltem Mehrfamilienhaus mit 6 WE. Die Wohnung besteht aus 4 ZKB mit insgesamt ca. 81 m² Wohnfläche.
Zur erstmaligen... mehr erfahren
weitere 4 Zimmer Wohnungen